URA

Atelier _ Marta Domenech _ MAP13

Deba _ Basque Country

Thinking Architecture, “In my youth I imagined poetry to be a kind of coloured cloud of metaphors and more or less diffuse allusions, which, in certain circumstances, could be enjoyed, but which was difficult to connect with a binding vision of the world. As an architect, I have learned to understand that the opposite of this youthful idea is probably closer to the truth. A work of architecture can have artistic qualities if its various forms and contents flow into a strong atmosphere that can move us. This art has nothing to do with interesting configurations or originality. It is about inner vision, understanding and, above all, truth. And perhaps truth, untouched, is poetry. Its appearance requires tranquillity. The artistic task of architecture is to create this calm waiting, because construction itself is never poetic. This is the only way to achieve those delicate qualities which, at certain moments, allow us to understand something we could never understand before.”

Peter Zumthor

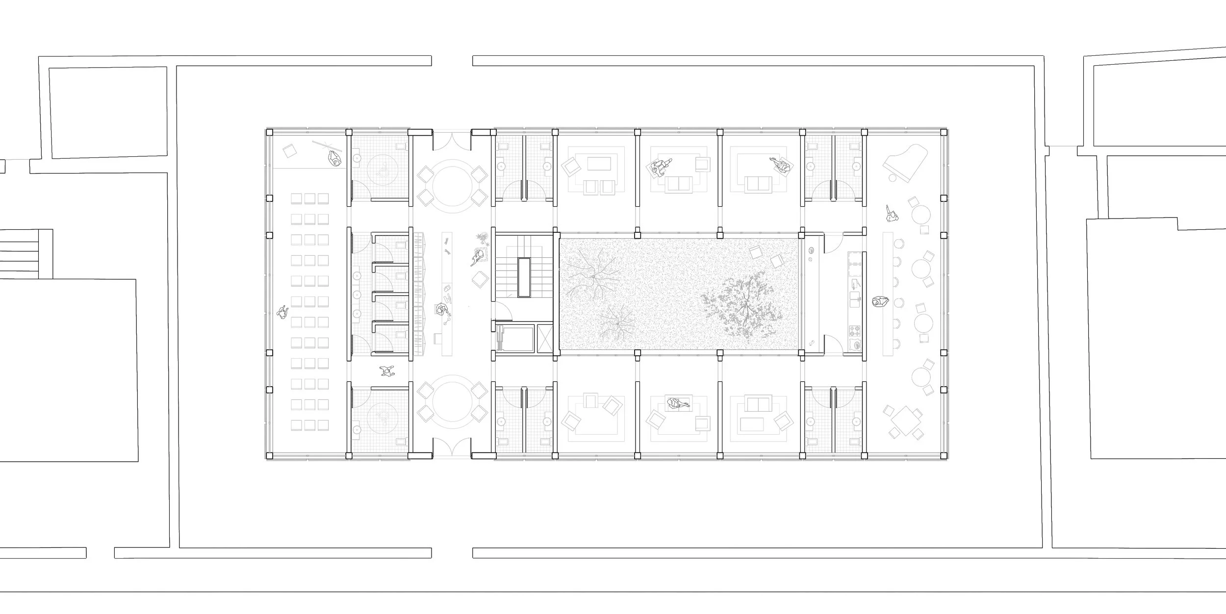
THE PAVILION

“Architecture associated with the human being is the advertence of a necessary reflection that approaches as something inherent to sensitivity and to its own meaning. The whole gives meaning to the parts. Argumentative layers OVERLAP, INTERLOCK, AND EMERGE in multiple reflections at once. A composition of fragments. Polyphonic structures in which there is not a single line of thought, but several that overlap simultaneously.”

Juhani Pallasmaa

The Pavilion is established through a gaze that does not impose itself on things, but rather rests upon them. Architecture is understood as a promise of beauty. A discipline in RESONANCE AND INTERACTION with life and with the world in all its complexity. Understanding that our experiences of the world are articulated and structured by Architecture.

Anterior
Anterior

• 001 • Atelier Pedro Domingos and Bak Gordon, Lisbon

Siguiente
Siguiente

• 003 • Atelier Pere Joan Ravetllat, Ravetllat arquitectura, Barcelona