FENT POBLE 

Turull Sörensen Architects _ Collaboration

Palma de Mallorca _ Spain _ Competition, Ibavi

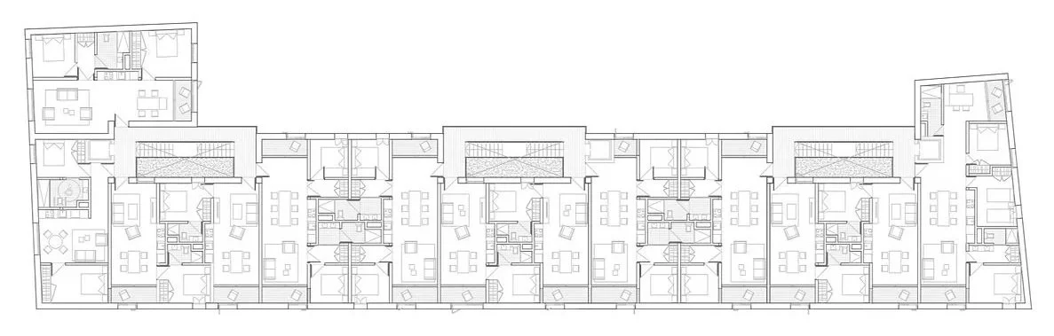
Palma is shaped by climate, light and a strong relationship between domestic life and the public realm. The project emerges from a careful reading of its Mediterranean context, responding to orientation, ventilation and scale as fundamental design drivers. The proposal is conceived as a porous and adaptable structure, where architecture mediates between private and collective life, interior and exterior, shadow and sunlight. Spatial sequences are defined through patios, filtered openings and transitional spaces that enhance natural ventilation and thermal comfort. Materiality is treated with restraint and precision, reinforcing the dialogue between construction and place. The project seeks a balance between permanence and flexibility, offering a contemporary response rooted in local conditions. An architecture of continuity, climate awareness and measured intervention.

Project developed together with Guillermo de Pouplana, Javier Manen, Pablo Rocabert and Ivo Turull, with the collaboration of Fredi Turull and Inés Sørensen, both architects based in Barcelona. The studio works across architecture and interior design at different scales and programs.

Anterior
Anterior

• 007 • Ronald Janssen Architecten, Collaboration, Portugal

Siguiente
Siguiente

• 009 • BAK Architects, Collaboration, Basque Country